Kamogawa Residence
Kamogawa Residence
Kamogawa Residence

海の景色に調和する、サーフライフを楽しむ理想的なセカンドハウス
海の景色に調和する、サーフライフを楽しむ理想的なセカンドハウス
Furniture & Goods,Interior design | August, 2022
海を望む贅沢な眺望を活かした、サーフィンを楽しむためのセカンドハウスリノベーション。2LDKから1LDKへの間取り変更により、開放的な空間を実現。西海岸テイストを取り入れた内装デザインと、サーフボードの収納を兼ねたインテリアが特徴的な、遊びと仕事が融合する居住空間です。
海を望む贅沢な眺望を活かした、サーフィンを楽しむためのセカンドハウスリノベーション。2LDKから1LDKへの間取り変更により、開放的な空間を実現。西海岸テイストを取り入れた内装デザインと、サーフボードの収納を兼ねたインテリアが特徴的な、遊びと仕事が融合する居住空間です。



Situation
海を望む開放的な間取り─セカンドハウスとして再生した休息空間
千葉の砂浜に面したマンションのベランダからの景色は、海が一面に広がる壮大な眺望でした。
お施主様はサーフィンを楽しむためのセカンドハウスとして、この物件を選定されました。
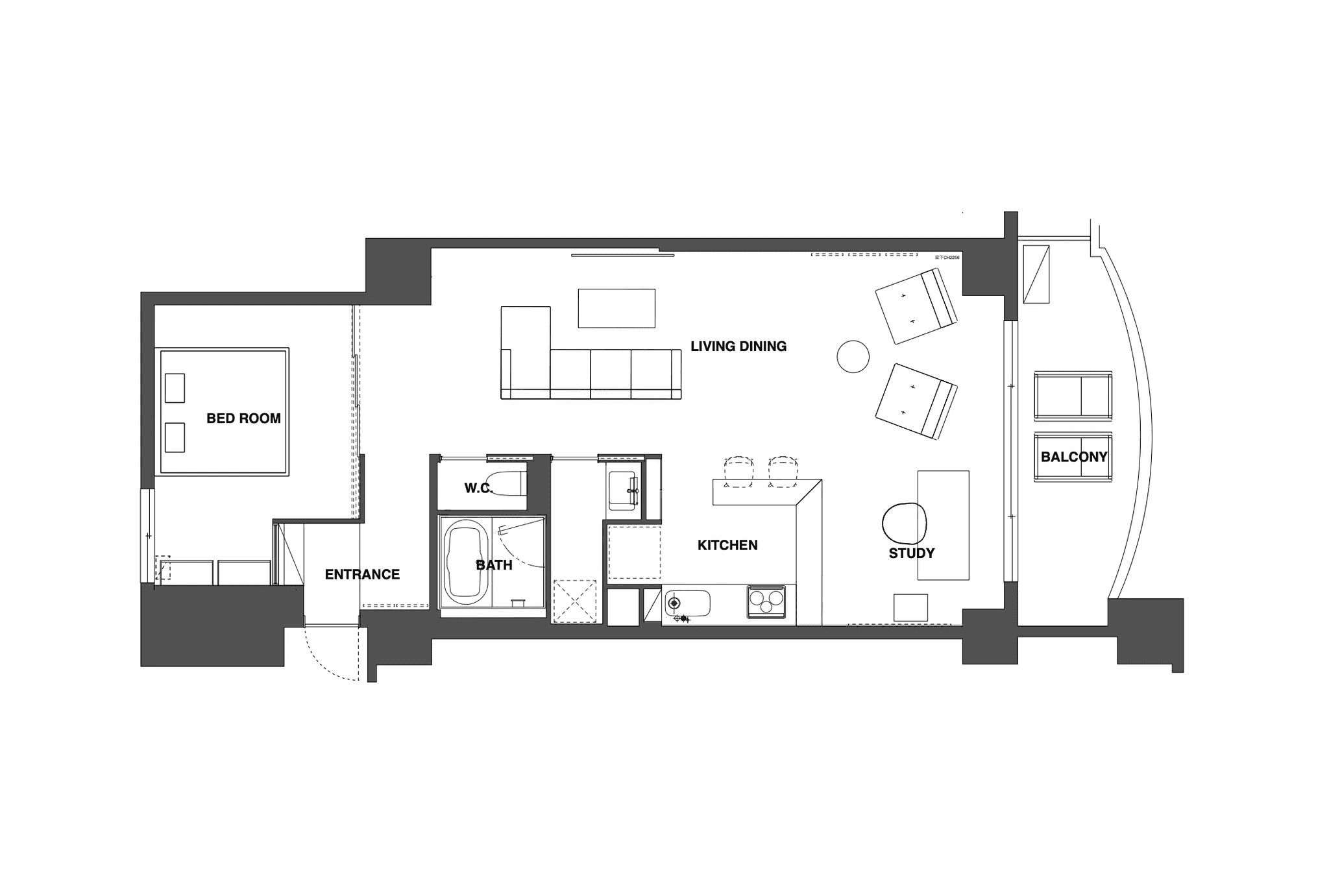
従来の2LDKから1LDKへと大胆に再構築。ベッドルームには引き戸を設け、海を望む窓までつながる開放的な空間を創出しました。
サーフィンの合間の仕事にも配慮し、遊びと仕事がシームレスに融合する環境を実現しています。
千葉の砂浜に面したマンションのベランダからの景色は、海が一面に広がる壮大な眺望でした。
お施主様はサーフィンを楽しむためのセカンドハウスとして、この物件を選定されました。
従来の2LDKから1LDKへと大胆に再構築。ベッドルームには引き戸を設け、海を望む窓までつながる開放的な空間を創出しました。
サーフィンの合間の仕事にも配慮し、遊びと仕事がシームレスに融合する環境を実現しています。

Concept
海を楽しむライフスタイルに寄り添う空間設計
西海岸への憧れとサーフィンへの情熱を活かしたデザインを目指し、カジュアルな雰囲気と機能性の両立を図ります。
リビングにはサーフボードの収納スペースを設け、インテリアの一部として取り入れ、木材を使用したフローリングで温かみのある空間を表現しています。
また、サーフィンの合間の仕事スペースと、くつろぎのためのカウンターを設置し、遊びと仕事が自然に融合するセカンドハウスが実現しました。
西海岸への憧れとサーフィンへの情熱を活かしたデザインを目指し、カジュアルな雰囲気と機能性の両立を図ります。
リビングにはサーフボードの収納スペースを設け、インテリアの一部として取り入れ、木材を使用したフローリングで温かみのある空間を表現しています。
また、サーフィンの合間の仕事スペースと、くつろぎのためのカウンターを設置し、遊びと仕事が自然に融合するセカンドハウスが実現しました。

What We Produced
海が見えるリラックス空間
どこからでも海が見えるゾーニングを意識し、お風呂や洗面所、トイレなどは右の壁内側に集約し、出来るだけ視界が広く取れるように工夫。

What We Produced
サーフボードもインテリアの一部に
サーフボードの収納機能を持たせた壁面。国内に流通のあるパーツでは表現出来ず海外から仕入れ、こだわりを貫いたディテール。
サーフボードの収納機能を持たせた壁面。国内に流通のあるパーツでは表現出来ず海外から仕入れ、こだわりを貫いたディテール。

素材の見せ方の工夫
天板のトップには厚みを持たせた積層合板を利用。モールテックスと組み合わせることで、カジュアルだけど軽くなりすぎず、周りとのバランスを保っている。
天板のトップには厚みを持たせた積層合板を利用。モールテックスと組み合わせることで、カジュアルだけど軽くなりすぎず、周りとのバランスを保っている。

スラブの荒々しさを活かす
空間に広がりを見せるため天井はスケルトンに。荒々しい剥き出しのコンクリートは、整理されたデザインと共存することでカジュアルさが抑えられている。
空間に広がりを見せるため天井はスケルトンに。荒々しい剥き出しのコンクリートは、整理されたデザインと共存することでカジュアルさが抑えられている。

Team
Project Management:Masayuki Sakurai (CŪMA)
Project Management:Masayuki Sakurai (CŪMA)
Design Direction:Masayuki Sakurai (CŪMA)
Design Direction:Masayuki Sakurai (CŪMA)
Interior Design:Rei Oshima (SNARK)
Interior Design:Rei Oshima (SNARK)
Construction:Total Project
Construction:Total Project
Furniture Select:Masayuki Sakurai (CŪMA)
Furniture Select:Masayuki Sakurai (CŪMA)
Photo:Daisuke Shima (ad hoc)
Photo:Daisuke Shima (ad hoc)
Property Data

間取り:1R
延床面積:76.38㎡
Next Project



