Shibuya House
Shibuya House
Shibuya House

素材とディテールが生む、上質な住まい
素材とディテールが生む、上質な住まい
Furniture & Goods,Interior design | July, 2020
都心にありながら森に隣接する集合住宅の一室を、開放感あふれるワンルームへリノベーション。空間全体を上品なトーンでまとめ、アートが自然に溶け込む住まいを実現しました。
視線の抜けを意識しつつ、壁を最小限に抑えながらも、アートを飾るスペースを確保。アクセントとしてビールストーンを取り入れ、国内流通のない家具を配置することで、洗練された唯一無二の空間を創出しました。
都心にありながら森に隣接する集合住宅の一室を、開放感あふれるワンルームへリノベーション。空間全体を上品なトーンでまとめ、アートが自然に溶け込む住まいを実現しました。
視線の抜けを意識しつつ、壁を最小限に抑えながらも、アートを飾るスペースを確保。アクセントとしてビールストーンを取り入れ、国内流通のない家具を配置することで、洗練された唯一無二の空間を創出しました。



Situation
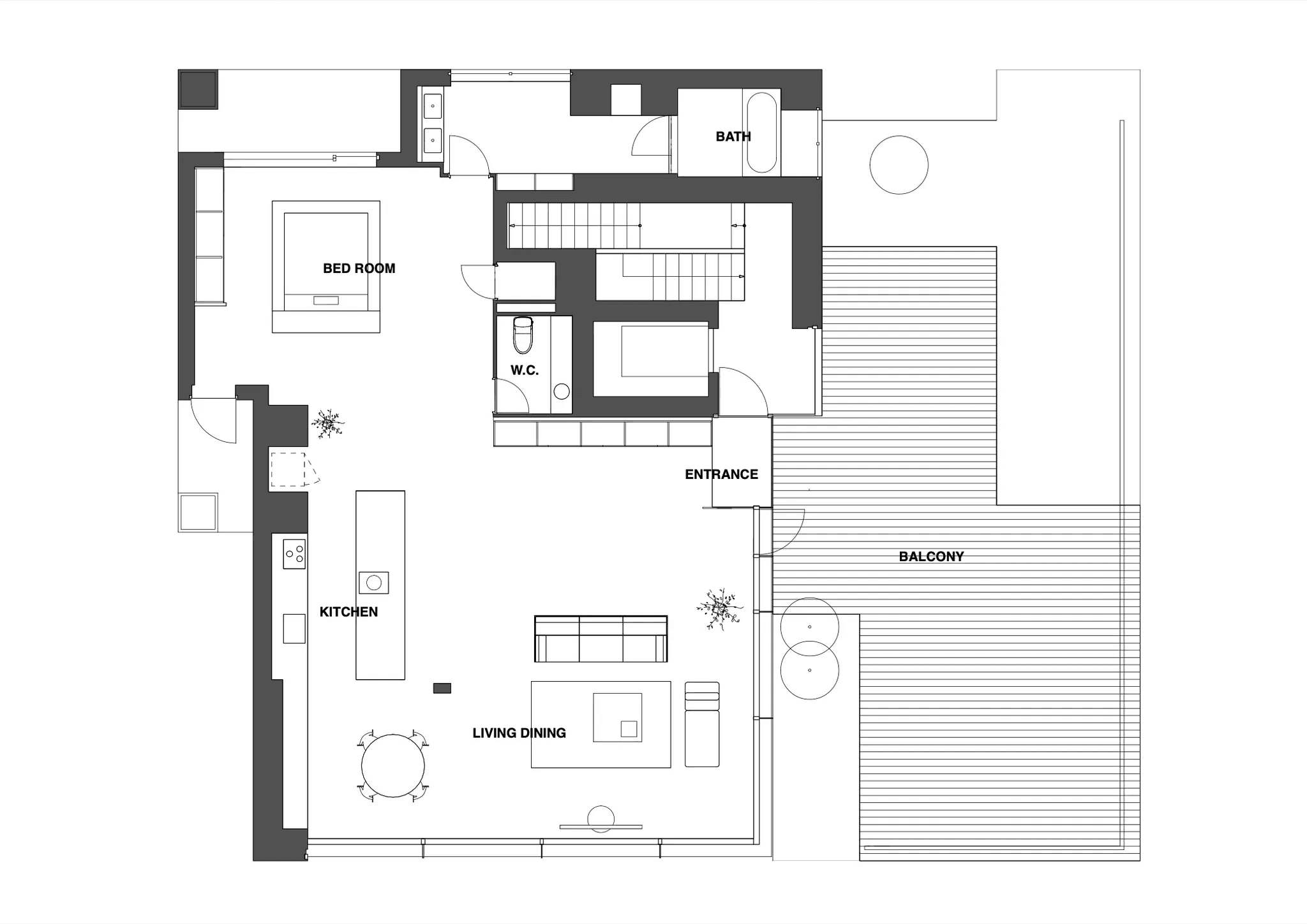
開放感と機能性を両立したワンルーム設計
お施主様の「一つの大きな空間で暮らしたい」という想いを叶えるため、細分化されていた間取りを取り払い、開放的なワンルームへ再構築。
視線が抜ける設計にこだわりつつ、アートを飾る壁面を効果的に配置しました。解体後に露出した空調配管はあえてデザイン要素として活用。左官材や床材も入念なサンプル確認を重ねながら選定し、素材感の美しさを引き立てています。
お施主様の「一つの大きな空間で暮らしたい」という想いを叶えるため、細分化されていた間取りを取り払い、開放的なワンルームへ再構築。
視線が抜ける設計にこだわりつつ、アートを飾る壁面を効果的に配置しました。解体後に露出した空調配管はあえてデザイン要素として活用。左官材や床材も入念なサンプル確認を重ねながら選定し、素材感の美しさを引き立てています。


Concept
アートが映える、洗練されたミニマルデザイン
白を基調とした空間に、建具に淡いピンクグレーを取り入れ、モノトーンになりすぎない柔らかな印象を演出。 フローリングには最大幅の広葉樹材を使用し、ギャラリーのようなシンプルで品格のある空間を目指しました。 また、ビールストーンを用いた柱がアクセントとなり、視覚的なリズムを生み出しています。 透明感のあるミニマルなデザインの中に、アートと暮らしが調和する心地よい住まいを実現しました。
白を基調とした空間に、建具に淡いピンクグレーを取り入れ、モノトーンになりすぎない柔らかな印象を演出。 フローリングには最大幅の広葉樹材を使用し、ギャラリーのようなシンプルで品格のある空間を目指しました。 また、ビールストーンを用いた柱がアクセントとなり、視覚的なリズムを生み出しています。 透明感のあるミニマルなデザインの中に、アートと暮らしが調和する心地よい住まいを実現しました。


What We Produced
ベッドルームへも視界が広がる開放的な1R空間
元々部屋1LDKで仕切られていたが、抜ける視界を意識して壁を全て取り壊して開放感を出した。
元々部屋1LDKで仕切られていたが、抜ける視界を意識して壁を全て取り壊して開放感を出した。


機能を兼ねた意匠となる柱
配管を収めたパイプスペースは極限まで最小化し、ビールストーンを用いることで周りとの差別化をはかり「見せる柱」として際立たせている。
配管を収めたパイプスペースは極限まで最小化し、ビールストーンを用いることで周りとの差別化をはかり「見せる柱」として際立たせている。


国内では流通のない家具の選定
唯一無二の空間を表現するためには、可能な限り他とは差別化できる家具を揃えることも選択肢にある。制約はあるが、お施主様の理解をえることで実現したスタイル。
唯一無二の空間を表現するためには、可能な限り他とは差別化できる家具を揃えることも選択肢にある。制約はあるが、お施主様の理解をえることで実現したスタイル。


アートを背負う壁
壁を残したいというお施主様の希望の裏腹に、その分収納を犠牲にすることになる。そんな想いを汲んだ折衷案。下部に収納を設け、ベンチタイプの収納を製作し、収納力を持ち合わせる壁面が叶った。
壁を残したいというお施主様の希望の裏腹に、その分収納を犠牲にすることになる。そんな想いを汲んだ折衷案。下部に収納を設け、ベンチタイプの収納を製作し、収納力を持ち合わせる壁面が叶った。


余白に寄り添う、軽やかな寝室のかたち
寝室までひとつながりの空間としながらも、ほどよく視線を遮るために、収納を兼ねたヘッドボードを設えました。
存在感のある厚みを持つベッドには、足元に照明を仕込むことで軽やかな浮遊感を演出しています。
寝室までひとつながりの空間としながらも、ほどよく視線を遮るために、収納を兼ねたヘッドボードを設えました。
存在感のある厚みを持つベッドには、足元に照明を仕込むことで軽やかな浮遊感を演出しています。












Team
Project Management:Yohei Yamaguchi , Masayuki Sakurai (CŪMA)
Project Management:Yohei Yamaguchi , Masayuki Sakurai (CŪMA)
Design Direction:Yohei Yamaguchi , Masayuki Sakurai (CŪMA)
Design Direction:Yohei Yamaguchi , Masayuki Sakurai (CŪMA)
Interior Design:Rei Oshima (SNARK)
Interior Design:Rei Oshima (SNARK)
Construction:Double Box
Construction:Double Box
Furniture Select:Masayuki Sakurai (CŪMA)
Furniture Select:Masayuki Sakurai (CŪMA)
Photo:Tomooki Kengaku
Photo:Tomooki Kengaku
Property Data


間取り:1R
延床面積:153.72㎡
Next Project



