Toranomon Residence
Toranomon Residence
Toranomon Residence

アートと暮らす、
大人のエクレクティック空間
アートと暮らす、
大人のエクレクティック空間
Furniture & Goods | October, 2023
シニア世代のご夫婦とインコが暮らすこの住まいは、アートとポップなエッセンスを取り入れながらも、長く愛せるタイムレスな空間を目指しました。お施主様の要望を、CŪMAならではの視点で個性的なエクレクティックスタイルで構築します。
空間の起点となったのは、お施主様が好まれたRoche Bobois。ダイニングにアイコンのように設え、これに合わせるように曲線の美しいソファやラグ、アート性のある照明を選定。柔らかさと洗練を兼ね備えたインテリアを実現しました。
国内では流通のない海外ブランドも採用し、唯一無二の空間をプロデュースしています。
華やかさと落ち着きを共存させたこの住まいは、日々の暮らしの中でアートを感じられる、大人のためのエクレクティックなモダンインテリアとなりました。
シニア世代のご夫婦とインコが暮らすこの住まいは、アートとポップなエッセンスを取り入れながらも、長く愛せるタイムレスな空間を目指しました。お施主様の要望を、CŪMAならではの視点で個性的なエクレクティックスタイルで構築します。
空間の起点となったのは、お施主様が好まれたRoche Bobois。ダイニングにアイコンのように設え、これに合わせるように曲線の美しいソファやラグ、アート性のある照明を選定。柔らかさと洗練を兼ね備えたインテリアを実現しました。
国内では流通のない海外ブランドも採用し、唯一無二の空間をプロデュースしています。
華やかさと落ち着きを共存させたこの住まいは、日々の暮らしの中でアートを感じられる、大人のためのエクレクティックなモダンインテリアとなりました。




Situation
インコと共に過ごす、アートを感じるタイムレスなモダンインテリア
住まい手はシニア世代のご夫婦。インコと共に暮らしながら、ポップさとアート性を感じられる空間を求めていました。奥さまは自宅で仕事をされるため、インコとの生活に配慮しながら、双方にとって快適な住環境を整えることをテーマにコーディネートしました。施主の世界観をCŪMAならではの視点で解釈し、アートのような美しさと機能性を備えた住空間を実現しています。
住まい手はシニア世代のご夫婦。インコと共に暮らしながら、ポップさとアート性を感じられる空間を求めていました。奥さまは自宅で仕事をされるため、インコとの生活に配慮しながら、双方にとって快適な住環境を整えることをテーマにコーディネートしました。施主の世界観をCŪMAならではの視点で解釈し、アートのような美しさと機能性を備えた住空間を実現しています。


Concept
ポップさと洗練さが調和する、大人のためのエクレクティック空間
鮮やかな色彩とユニークなフォルムを取り入れながらも、住まいとしての心地よさを大切にし、「ベーシックだけどエクレクティックであること」を目指しました。シニア世代のご夫婦とインコが過ごす空間として、個性的な要素を活かしつつ落ち着いた上品さを保つことを重視します。カラフルだけど落ち着きのある程良いアクセントと、遊び心のあるデザインを効果的に配置し、長く愛せる心地よさを追求しました。
鮮やかな色彩とユニークなフォルムを取り入れながらも、住まいとしての心地よさを大切にし、「ベーシックだけどエクレクティックであること」を目指しました。シニア世代のご夫婦とインコが過ごす空間として、個性的な要素を活かしつつ落ち着いた上品さを保つことを重視します。カラフルだけど落ち着きのある程良いアクセントと、遊び心のあるデザインを効果的に配置し、長く愛せる心地よさを追求しました。


What We Produced
曲線が描く、柔らかさと落ち着きのあるユーモラスなリビング
淡いピンクのエッグチェアと深いグリーンのソファのコントラストが、ギャップを感じさせずに大人なポップさを感じさせる。さらに曲線を描くコーヒーテーブルやラグまでもが、空間全体に柔らかな印象を与えている。
淡いピンクのエッグチェアと深いグリーンのソファのコントラストが、ギャップを感じさせずに大人なポップさを感じさせる。さらに曲線を描くコーヒーテーブルやラグまでもが、空間全体に柔らかな印象を与えている。




良いモノは国内に限らず
ベッドルームにはニューヨークを拠点とするRoll & Hillのナイトテーブルを採用。ウォールナットとDrop chairのピンクの相性、さらには大理石と真鍮の差し色が美しい。
ベッドルームにはニューヨークを拠点とするRoll & Hillのナイトテーブルを採用。ウォールナットとDrop chairのピンクの相性、さらには大理石と真鍮の差し色が美しい。
手触り感のある素材の力強さ
玄関の扉を開けると、特注の藁アートが目に飛び込む。インパクトのあるアートと、ラタンを用いたGTVの収納が、素材の柔らかさを感じさせながら来客を迎える。
玄関の扉を開けると、特注の藁アートが目に飛び込む。インパクトのあるアートと、ラタンを用いたGTVの収納が、素材の柔らかさを感じさせながら来客を迎える。




Team
Project Management:Masayuki Sakurai , Yusuke Kurii (CŪMA)
Project Management:Masayuki Sakurai , Yusuke Kurii (CŪMA)
Design Direction:Masayuki Sakurai (CŪMA)
Design Direction:Masayuki Sakurai (CŪMA)
Furniture Select:Masayuki Sakurai (CŪMA)
Furniture Select:Masayuki Sakurai (CŪMA)
Lifestyle Goods Select:Masayuki Sakurai (CŪMA)
Lifestyle Goods Select:Masayuki Sakurai (CŪMA)
Photo: Tomooki Kengaku
Photo: Tomooki Kengaku
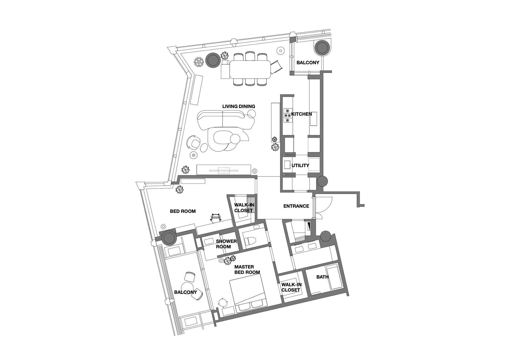
Property Data


間取り:2LDK
延床面積:139.60㎡
Next Project



