Roppongi Residence
Roppongi Residence
Roppongi Residence

NEUTRALに暮らす─アートと調和するしなやかなワンルーム
NEUTRALに暮らす─アートと調和するしなやかなワンルーム
Furniture & Goods,Interior design | December, 2023
アートと共に暮らすお施主様のために、広がりと柔らかさを兼ね備えた住まいをデザインしました。3LDKから大胆に1Rへと再構築し、ニュートラルなトーンで統一しながらも、フローリングの斜め張りやコンクリートの柱・梁が空間に奥行きと表情を与えています。
緩やかに仕切ったベッドスペース、赤みを帯びた石材のカウンター、視線を奥へと導く曲線の収納など、細部にこだわりながら開放感と可変性を両立。住まいとアートが溶け合う空間を実現しました。
アートと共に暮らすお施主様のために、広がりと柔らかさを兼ね備えた住まいをデザインしました。3LDKから大胆に1Rへと再構築し、ニュートラルなトーンで統一しながらも、フローリングの斜め張りやコンクリートの柱・梁が空間に奥行きと表情を与えています。
緩やかに仕切ったベッドスペース、赤みを帯びた石材のカウンター、視線を奥へと導く曲線の収納など、細部にこだわりながら開放感と可変性を両立。住まいとアートが溶け合う空間を実現しました。



Situation
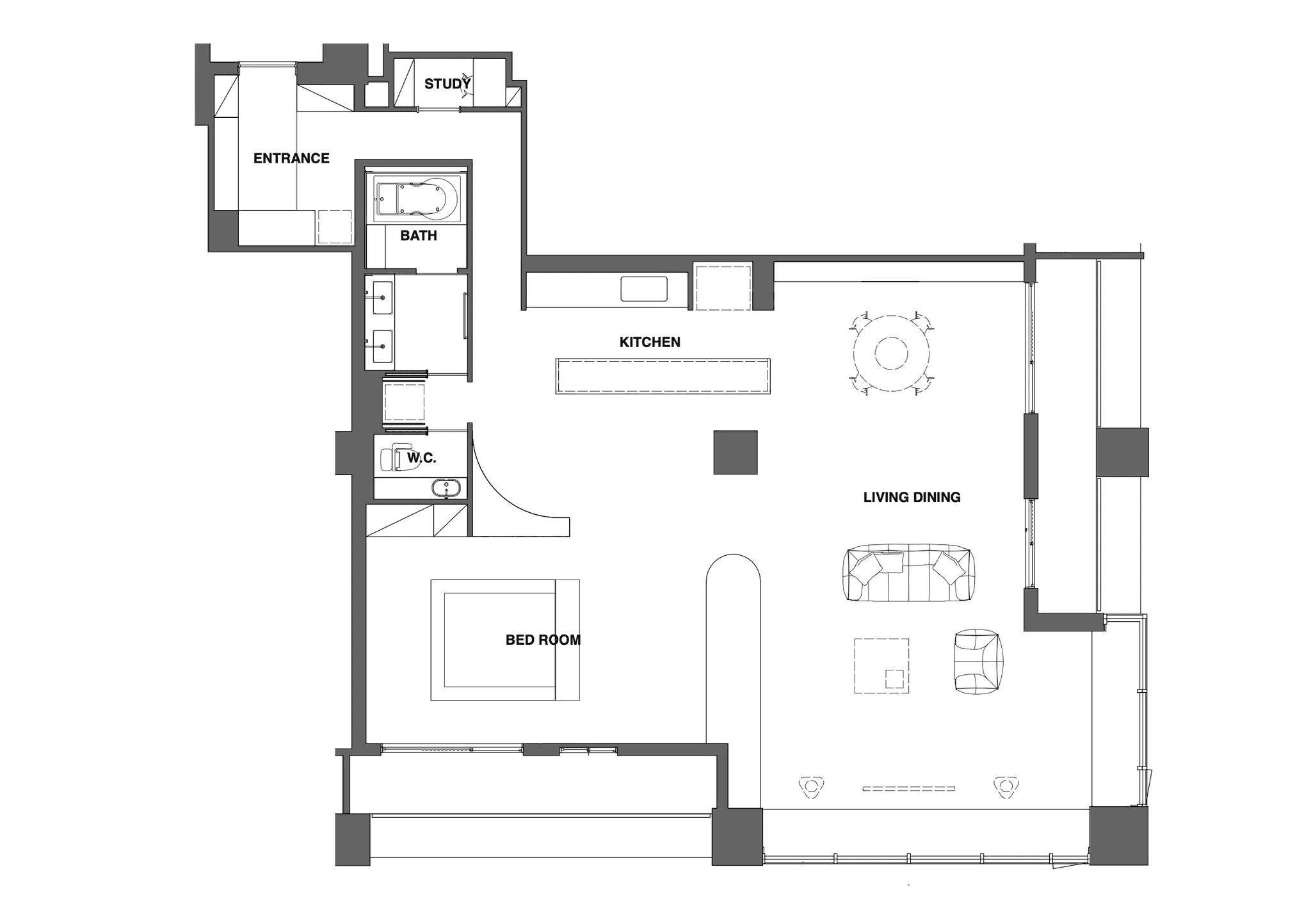
広がる視界としなやかな可変性─1Rに再構築したアートを楽しむ住まい
長年お付き合いのあるお施主様は、一貫して広々とした開放的な空間を求めていました。限られた面積を最大限に活かすため、3LDKの間取りを1Rへとフルリノベーション。将来的な可変性を持たせつつ、現在の暮らしに最適なレイアウトを実現しました。建築事務所スナークと協働で設計を進め、給排水設備があったスペースをスタディルームとして活用するなど、将来的な転用も視野に入れた柔軟な設計としています。
長年お付き合いのあるお施主様は、一貫して広々とした開放的な空間を求めていました。限られた面積を最大限に活かすため、3LDKの間取りを1Rへとフルリノベーション。将来的な可変性を持たせつつ、現在の暮らしに最適なレイアウトを実現しました。建築事務所スナークと協働で設計を進め、給排水設備があったスペースをスタディルームとして活用するなど、将来的な転用も視野に入れた柔軟な設計としています。


Concept
NEUTRALな空間でアートと暮らしが響き合う住まい
アートのある暮らしを引き立てつつ、住まいとしての心地よさを両立する空間づくりを目指しました。ニュートラルなトーンを基調に、モールテックスやジョリパッドの質感、曲面の造作収納など、細部のディテールを丁寧に積み重ねることで、シンプルながらも豊かな表情を持つ住まいを実現しています。フローリングの斜め張りが生み出す奥行き感により、空間の広がりがより印象的に演出されています。
アートのある暮らしを引き立てつつ、住まいとしての心地よさを両立する空間づくりを目指しました。ニュートラルなトーンを基調に、モールテックスやジョリパッドの質感、曲面の造作収納など、細部のディテールを丁寧に積み重ねることで、シンプルながらも豊かな表情を持つ住まいを実現しています。フローリングの斜め張りが生み出す奥行き感により、空間の広がりがより印象的に演出されています。


What We Produced
フローリングがもたらす空間の奥行き感
フローリングを斜め張りにすることで、リビングの窓から広がる視界を強調し、空間に抜け感を与えた。
中央の柱と梁は、コンクリートをあえて露出し、ニュートラルな中に表情を残している。
フローリングを斜め張りにすることで、リビングの窓から広がる視界を強調し、空間に抜け感を与えた。
中央の柱と梁は、コンクリートをあえて露出し、ニュートラルな中に表情を残している。


空間を柔らかく仕切る工夫
広々とした1Rの中にベッドスペースを取り入れるため、腰高の収納を設置した。
これにより、開放感を損なうことなく適度な仕切りを実現し、プライバシーと収納機能を確保。


天井の造りにもこだわりを
天井を可能な限り高く設計することで、空間の広がりを演出。限られた天井裏のスペースの中で、空調設備や配管の効率的な配置を綿密に計画。
天井を可能な限り高く設計することで、空間の広がりを演出。限られた天井裏のスペースの中で、空調設備や配管の効率的な配置を綿密に計画。












Team
Project Management:Masayuki Sakurai , Yusuke Kurii (CŪMA)
Project Management:Masayuki Sakurai , Yusuke Kurii (CŪMA)
Design Direction:Masayuki Sakurai , Yusuke Kurii (CŪMA)
Design Direction:Masayuki Sakurai , Yusuke Kurii (CŪMA)
Interior Design:Rei Oshima , Shota Kaneko (SNARK)
Interior Design:Rei Oshima , Shota Kaneko (SNARK)
Construction:BEANS
Construction:BEANS
Furniture Select:Masayuki Sakurai (CŪMA)
Furniture Select:Masayuki Sakurai (CŪMA)
Other:Kvadrat
Other:Kvadrat
Photo:Tomooki Kengaku
Photo:Tomooki Kengaku
Property Data


間取り:1R
延床面積:155.84㎡
Next Project



