
Furniture & Goods, Interior design | April,2025
週末の静けさに包まれた施主のためのアトリエ兼セカンドハウス。公園の緑と満開の桜を望みながら、創作と家族との時間を大切に過ごせる場所です。洞窟のような籠り感とホテルの上質さを融合し、ポストモダンビンテージの遊び心を取り入れた心地よい空間を実現しました。
Situation
音と光と、創作のための余白
この空間は、施主が思い描いた“週末の理想の時間”をかたちにしたものです。
セカンドハウスには、創作に集中できるアトリエを。夜にはカウンターでお酒を楽しみながら、真空管アンプから流れる音楽に耳を傾ける——そんなシーンを想定して設計を進めました。
シャワールームには深緑のタイルを用い、まるで洞窟のようなアングラな雰囲気を演出。空間全体に漂う静けさと素材の手触りが、日常と非日常をゆるやかに行き来させてくれます。
Concept
包まれ感と上質さを叶えた居心地の場
創作とくつろぎが自然に調和する空間を目指しました。
施主の希望した洞窟のような包まれ感とホテルのような上質な快適さを融合し、五感に寄り添う居心地を大切にしています。
ポストモダンビンテージを基調に家具や雑貨を厳選し、遊び心と落ち着きを両立。
真空管アンプの澄んだ音色や偏光フィルムを通した柔らかな自然光、質感豊かな素材が調和し、日々の中に静かな時間が流れます。
家族と共に創作に向き合う、心地よい居場所となっています。
What We Produced
玄関を彩る、静かな存在感
リビングへ続く象徴的なダイニングテーブル
Team
Property Data
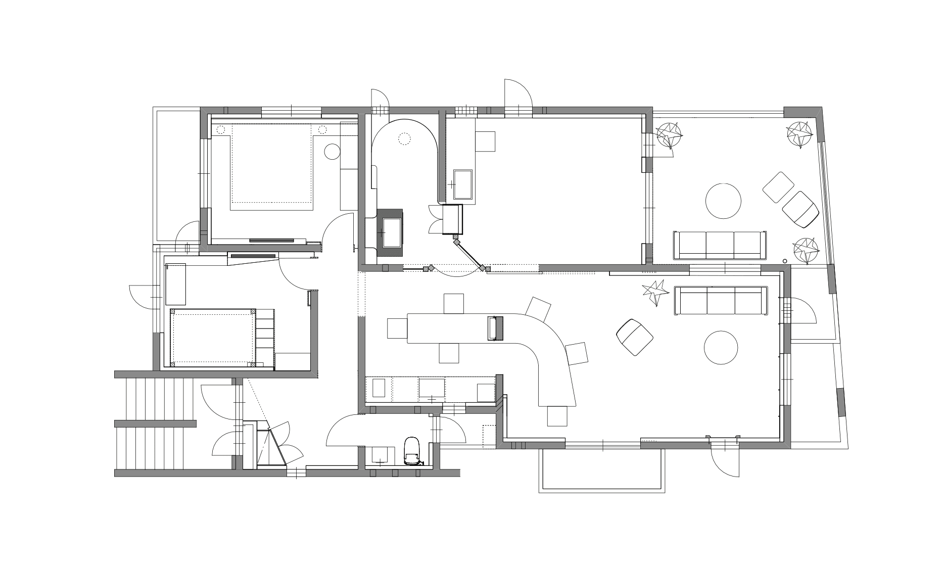
間取り:3LDK
延床面積:120.82㎡
Next Project































